< Retour liste des biens

Penthouse 316 m2 dans le bâtiment Palais du Printemps - RFC49600824AV

Appartement Mоnaco RFC49600824AV
Surface habitable 163 m²
Nombre de chambre 3 chambres
12 800 000 €
  • Vue mer
  • Nombre d'étages : 9-10ый
  • Superficie totale : 316 m²
  • Terrasse : 153 m²
  • Nombre de pieces : 4
  • Nombre de salles de bain : 1
  • Nombre de salles de douche : 2

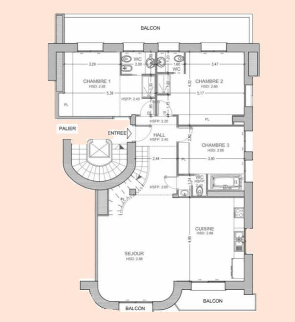
Au coeur de Moneghetti, découvrez ce penthouse en duplex, l'alliance parfaite de l'élégance d'un immeuble bourgeois et d'une rénovation moderne. Montez l'escalier intérieur et profitez de la grande terrasse sur le toit, équipée d'une pergola et d'une cuisine d'été, offrant une vue imprenable sur la mer Méditerranée.

 

 

 

Magnifique penthouse en duplex, récemment rénové, situé dans un immeuble de style bourgeois sur le Boulevard Belgique.

 

 

 

La propriété s'ouvre sur une entrée menant au séjour/salle à manger qui s'ouvre sur un balcon offrant une vue mer imprenable. Il dispose d'une cuisine ouverte moderne, ainsi que de deux chambres, chacune avec une salle de douche attenante et un accès à un balcon. La troisième chambre est complétée par une salle de bain.

 

 

 

Le dernier étage dispose d'un grand toit-terrasse équipé d'une pergola et d'une cuisine d'été, le tout avec vue sur la mer.

 

 

 

Selon vos préférences, la cuisine peut être isolée ou intégrée au séjour.

 

 

 

Vous pouvez également louer un parking dans le bâtiment Les Oliviers

 

 

 

INFORMATIONS DÉTAILLÉES

 

Superficie totale : 316 m2

 

Surface habitable : 163 m2

 

Superficie terrasse : 153 m2

 

Bâtiment : Palais du Printemps

 

Quartier: Moneghetti

 

Chambres : 4

 

Chambres : 3

 

Salles de bain : 3

 

Étage : 9-10ème

 

 

 

Prêt hypothécaire à 100 %, 0,85 – 1,85 % par an

Ce bien vous intéresse ?

Biens similaires