< Retour liste des biens

Beau duplex à vendre à Monaco, 270m2, 4 chambres

Appartement Mоnaco RFC18940915AV
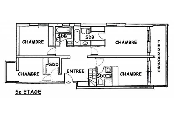
Surface habitable 220 m²
Nombre de chambre 4 chambres
13 700 000 €
  • Vue mer
  • Superficie totale : 270 m²
  • Terrasse : 50 m²
  • Nombre de pieces : 6

L'appartement est élégamment décoré et est situé sur la deuxième ligne, près des plages dans le "Larvotto" avec vue panoramique sur la mer, il ya un petit jardin.

La résidence est gardée, il ya un concierge.

 

L'appartement dispose de:

- Grand salon

- Cuisine

- 4 chambres avec salles de bains

- 2 terrasses

- Veranda

- Bureau

- 2 places de parking

- Sous-sol

 

Prêt hypothécaire de 2 à 2,5%

Ce bien vous intéresse ?

Biens similaires