< Retour liste des biens

Appartement dans Résidence Trocadéro - RFC43090921AV

Appartement Mоnaco RFC43090921AV
Nombre de chambre 2 chambres
5 750 000 €
  • Vue mer
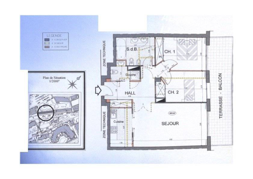
  • Superficie totale : 110 m²
  • Nombre de pieces : 3
  • Nombre de salles de bain : 1
  • Nombre de salles de douche : 1
  • Nombre de caves : 1
  • Nombre de parkings : 1
  • Type de climatisation : Central
  • Ascenseur

Dans un quartier résidentiel de la Principauté de Monaco, aux infrastructures développées, à deux pas des plages, cet appartement 3 pièces est idéalement situé sur la place

 

Moulins dans la résidence Trocadéro, et bénéficie d'une magnifique vue mer.

 

La résidence dispose d'un ascenseur, d'un parking, d'une cave et d'un service de conciergerie.

 

L'appartement se compose actuellement d'un hall d'entrée, séjour/salle à manger, cuisine américaine équipée, 2 chambres, salle de bains et salle d'eau. Terrasse et sous-sol. Un garde-manger est inclus dans cette offre.

 

Infrastructure : Arrêt de bus, Commerces, Supermarché.

 

Crédit immobilier en France 0,85-1,85 % par an

Nous vous aidons à obtenir un prêt auprès d'une banque

Ce bien vous intéresse ?

Biens similaires