< Retour liste des biens

Appartement à vendre à Residence Villa Dorothy

Appartement Mоnaco RFC19861215AV
Surface habitable 180 m²
Nombre de chambre 3 chambres
7 500 000 €
  • Superficie totale : 188 m²
  • Terrasse : 8 m²
  • Nombre de salles de bain : 1
  • Nombre de salles de douche : 1
  • Ascenseur

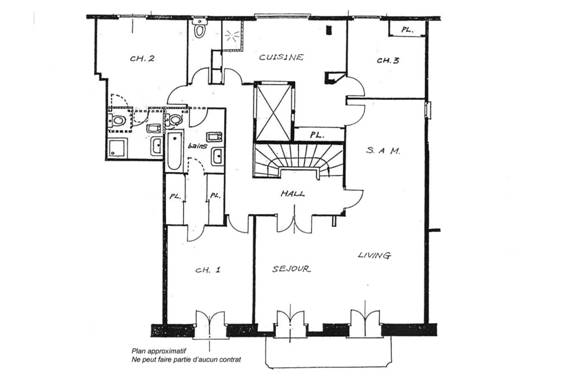
Ce magnifique appartement de deux étages en parfait état situé dans une résidence Villa Dorothy, fait dans le style Bourgeois. L'appartement est très spacieux avec de hauts plafonds et des fenêtres donnant sur le côté sud-ouest.

 

L'appartement se compose de:

- Hall d'entrée

- Grand salon

- Salle à manger

- Cuisine équipée

- 3 chambres

- Salle de bains et salle d'eau

- Bureau

- Sous-sol

- Balcon

 

Les prêts hypothécaires en France 2-2,5% par an

Nous pouvons vous aider avec un prêt à la banque

Ce bien vous intéresse ?

Biens similaires