< Retour liste des biens

Appartement à vendre à Monaco, 147m2

Appartement Mоnaco RFC11170412AV
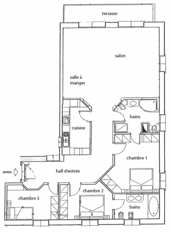
Surface habitable 147 m²
Nombre de chambre 3 chambres
6 450 000 €
  • Vue mer
  • Terrasse : 11 m²
  • Nombre de pieces : 4

L'appartement est situé au dernier étage et a une belle vue sur la mer et le port et a la meilleure vue au cours de la Formule 1. Parking à louer (190 € par mois).

Au cours de la Formule 1 Grand Prix, 24 personnes peuvent rester sur la terrasse.

Prêt hypothécaire de 2-2,5% par an

Ce bien vous intéresse ?

Biens similaires