< Retour liste des biens

Appartement 218 m2 dans l'immeuble Millefiori - RFC48271023AV

Appartement Mоnaco RFC48271023AV
Nombre de chambre 3 chambres
  • Vue mer
  • Nombre d'étages : -/37
  • Superficie totale : 218 m²
  • Nombre de pieces : 4
  • Nombre de caves : 1

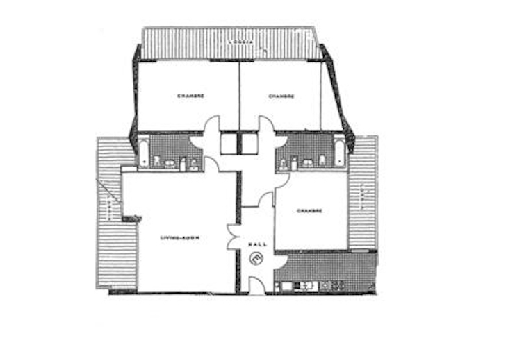
Ce très bel appartement est situé dans un immeuble moderne à côté des Jardins du Casino. Il dispose de grandes terrasses et d'une vue panoramique sur le Rocher, le port et la mer.

 

 

 

L'appartement comprend un double séjour avec accès à une loggia spacieuse, 2 chambres spacieuses avec deux salles de bains, une chambre/bureau et une cuisine entièrement équipée. Toutes les pièces ouvrent sur de grandes loggias avec vue sur la Principauté.

 

 

 

Le bâtiment dispose d'un service de sécurité 24h/24.

 

 

 

Vendu avec un sous-sol.

 

 

 

Possibilité d'acheter deux places de parking dans l'immeuble.

 

 

 

DES INFORMATIONS DÉTAILLÉES

 

Superficie totale : 218 m²

 

Chambres : 4

 

Chambres : 3

 

Sous-sol : 1

 

Etage : -/37

 

Bâtiment : Le Millefiori

 

Région : Monte-Carlo

 

 

 

Prêt hypothécaire à 100 %, 0,85 – 1,85 % par an

Ce bien vous intéresse ?

Biens similaires