< Retour liste des biens

Appartement 193 m2 à Harbour Lights Palace - RFC49370724AV

Appartement Mоnaco RFC49370724AV
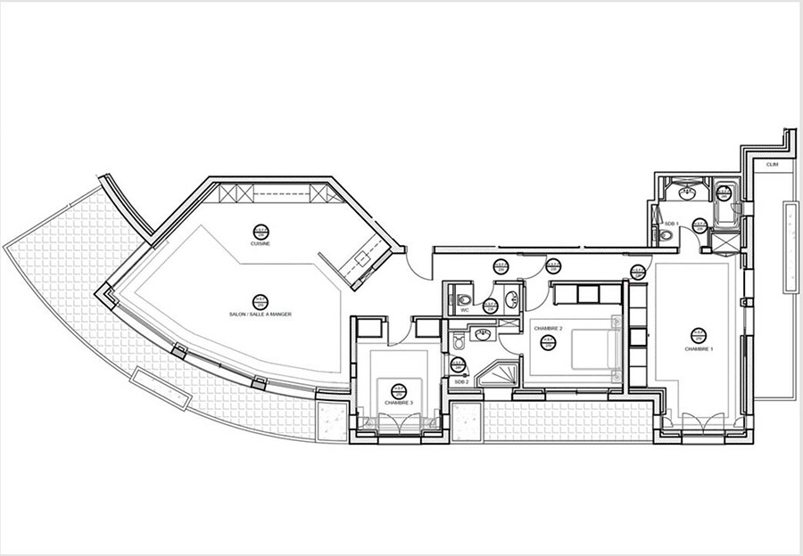
Surface habitable 141 m²
Nombre de chambre 3 chambres
10 500 000 €
  • Vue mer
  • Exposition : Sud-Est
  • Superficie totale : 193 m²
  • Nombre de pieces : 4
  • Nombre de caves : 1
  • Nombre de parkings : 1

Grand appartement entièrement rénové avec vue panoramique sur le port de Monaco.

 

 

 

Ce magnifique appartement de 3 chambres a été entièrement rénové avec des matériaux de la plus haute qualité (sol en marbre italien et boiseries sur mesure) et équipé des dernières technologies (système domotique contrôlant l'éclairage, les stores et la climatisation, cuisine entièrement équipée par Miele).

 

 

 

Résidence de luxe moderne avec concierge 24h/24 à proximité du centre de Monaco. L'appartement est situé au dernier étage et est ouvert des deux côtés. Il dispose d'un excellent éclairage, rehaussé par des sols en marbre et des boiseries claires.

 

 

 

Le séjour avec cuisine ouverte et parfaitement intégrée offre une vue imprenable sur le port de Monaco, la mer et le Rocher.

 

Les trois chambres sont situées à l'arrière de l'appartement dans un quartier calme : deux chambres partagent une salle de douche et la chambre principale dispose de nombreux rangements ainsi que d'une salle de bain attenante.

 

 

 

L'appartement est proposé avec un sous-sol et un parking dans l'immeuble.

 

De plus, un deuxième parking est disponible pour 400 000 euros.

 

 

 

DES INFORMATIONS DÉTAILLÉES

 

Bâtiment : Palais des lumières du port

 

Quartier: Moneghetti

 

Superficie totale : 193 m2

 

Surface habitable : 141 m2

 

Condition: Nouveau

 

Chambres : 4

 

Chambres : 3

 

Places de parking : 1

 

Sous-sol : 1

 

Exposition : Sud-Est

 

Vue : Large vue panoramique, Mer

 

 

 

Prêt hypothécaire à 100 %, 0,85 – 1,85 % par an

Ce bien vous intéresse ?

Biens similaires