< Back

Apartment 132 m2 in a residence with pool - RFC47200523AV

Apartment Villefranche-sur-Mer RFC47200523AV
Surface habitable 132 m²
Nombre de chambre 3 rooms
2 300 000 €
  • Sea view
  • Terrace space : 34 m²
  • Number of rooms : 4
  • Number of bathrooms : 2
  • Number of shower rooms : 1
  • Number of parking places : 1
  • Type of air conditioning system : Central
  • Swimming pool
  • Elevator

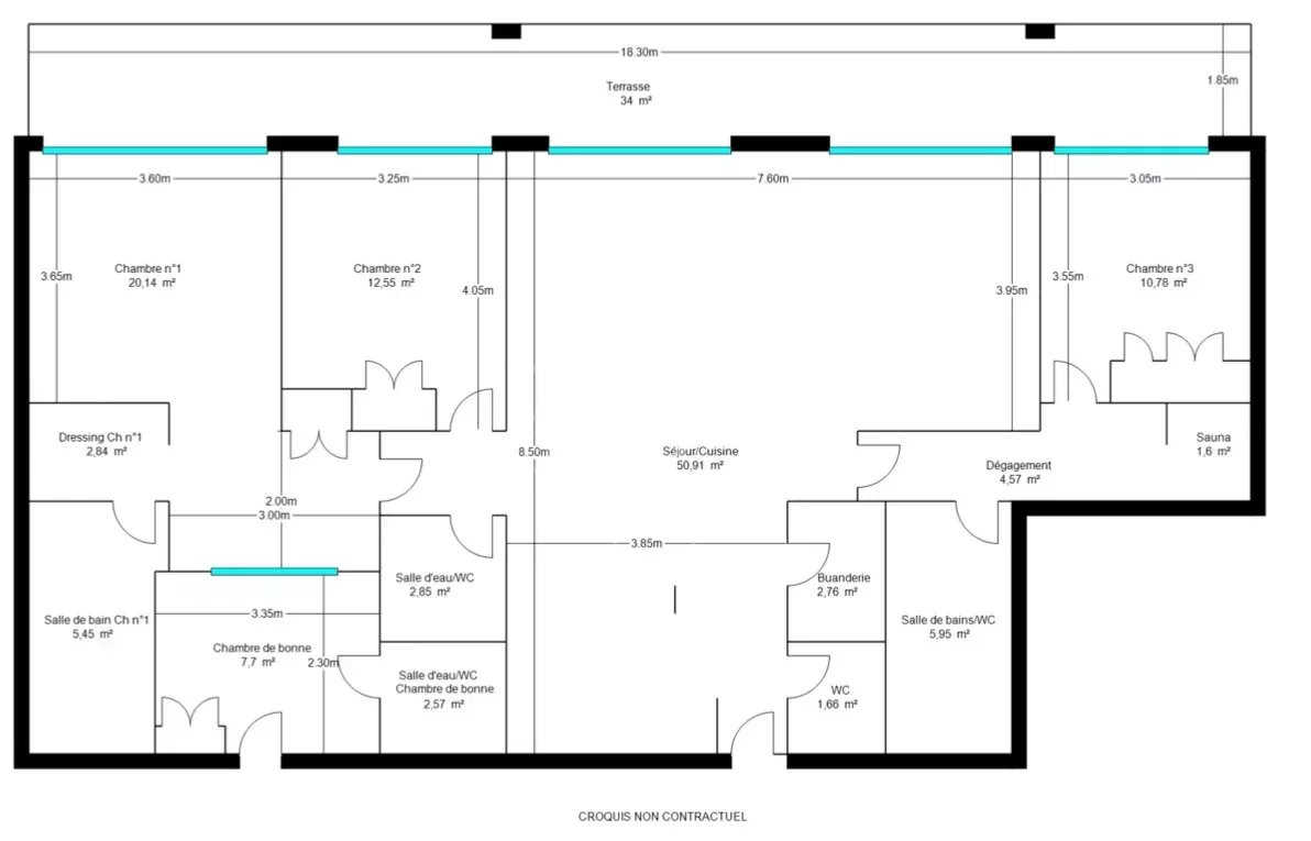
Magnificent 4-room apartment, recently renovated with luxury equipment, located in a prestigious residence with swimming pool.

 

 

 

The main room offers spacious living space including living room, dining room and fully equipped American kitchen. The master bedroom has a walk-in closet and full bathroom. Two other bedrooms, one with a double bed and an attached bathroom, and a third bedroom with two single beds, are also present. In addition, there is a shower room with toilet. A guest toilet and laundry room add practicality.

 

 

 

A magnificent 34 m2 terrace extends the entire length of the apartment, offering breathtaking views of the sea and one of the most beautiful harbors in the world. Take full advantage of this exceptional location!

 

 

 

This property is sold with a cellar and private parking, guaranteeing you comfort and peace of mind.

 

 

 

Don't miss the opportunity to purchase this exceptional property!

 

 

 

TOTAL

 

1 living room, 1 American kitchen, 1 bedroom (20.14 m2), 1 bathroom/WC, 1 bathroom/WC, 2 bedroom (12.55 m2), 3 bedroom (10.78 m2), 1 shower/WC, 1 laundry, 1 changing room, 1 terrace 34 m², 1 parking.

 

 

 

DETAILED INFORMATION

 

Living area: 132 m²

 

Terrace area: 34 m²

 

Rooms: 4

 

Bedrooms: 3

 

Parking spaces: 1

 

Condition: Excellent

 

View: Sea, Panoramic

 

Area: Basse Corniche

 

Status: Luxurious

 

Heating: electric, floor individual

 

 

 

SERVICES

 

Air conditioning, Home automation, Double glazed windows, Sliding windows, Internet, Electric blinds, Elevator, Intercom, Automatic gates, CCTV, Swimming pool, Coffee maker, Iron, Oven, Microwave, Washing machine, Dishwasher, Linen, Stove, Refrigerator, Hairdryer, Dryer, TV, Dishes.

 

 

 

NEARBY

 

Bus, City Center, Shops, Station, Sea, Beach, Main Road.

 

 

 

100% mortgage loan, 0.85 – 1.85% per annum

Are you interested in this property?

Similar properties