< Back

Apartment 116 m2 in the center of Beaulieu-sur-Mer - RFC48611223AV

Apartment Beaulieu-sur-Mer RFC48611223AV
Surface habitable 116 m²
Nombre de chambre 3 rooms
1 150 000 €
  • Sea view
  • Orientation : South-East
  • Number of floors : 3ий/-
  • Number of rooms : 4
  • Number of shower rooms : 2
  • Number of parking places : 1
  • Type of air conditioning system : Central
  • Elevator

We offer you a property of rare size in the very center of Beaulieu, a stone's throw from the central square of Beaulieu-sur-Mer.

 

 

 

Apartment of 4 rooms in excellent condition, consists of a living room of more than 40 m2 with a kitchen opening onto a terrace overlooking the sea, 3 bedrooms, 2 shower rooms with toilets, a guest toilet.

 

 

 

Private parking completes this property.

 

 

 

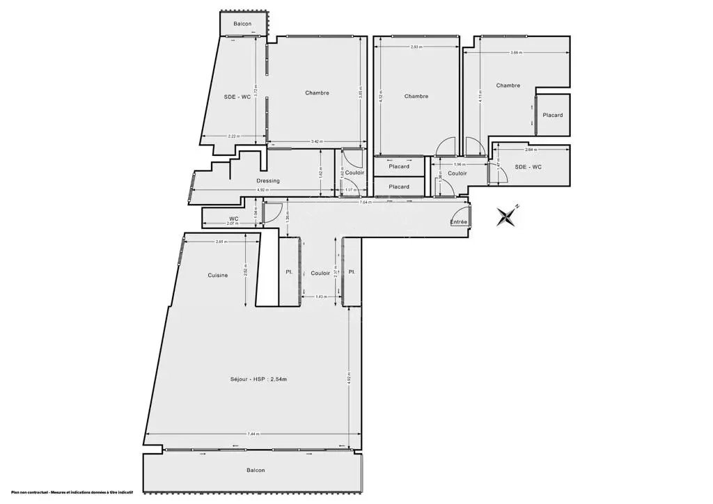
CONSISTS OF

 

1 covered parking

 

1 entrance 10 m²

 

1 Living room/kitchen 41 m²

 

1 toilet 1 m²

 

1 bedroom 12 m²

 

1 bedroom 13 m²

 

1 bedroom 12 m²

 

1 Shower room/toilet 7 m²

 

1 Shower room/toilet 4 m²

 

1 terrace

 

1 balcony

 

1 Free space 6 m²

 

1 Free space 2 m²

 

1 Dressing room 7 m²

 

1 Free space 2 m²

 

 

 

DETAILED INFORMATION

 

Living area: 116 m²

 

Exposure: South

 

Rooms: 4

 

Bedrooms: 3

 

Floor: 3rd/-

 

Exposure: Southeast

 

View: Sea, Panoramic

 

Heating: Collective central

 

Condition: Excellent condition

 

 

 

SERVICES

 

Air conditioning, Double glazing, Internet, Electric shutters, Disabled access, Lift, Intercom.

 

 

 

100% mortgage loan, 0.85 – 1.85% per annum

Are you interested in this property?

Similar properties